10 - Jayn Construction
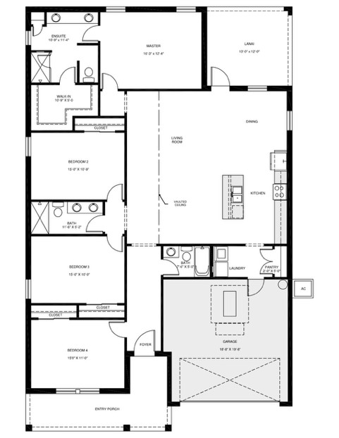
The Juliet
The Juliet offers a balanced layout with open living, covered porch and lanai, private owner's suite, and efficient garage access - ideal for families or flexible living needs.

Model Address: | 6589 Freeport Drive Spring Hill, FL 34608 |
| Bedrooms: | 4.0 |
| Bathrooms: | 3.0 |
| Living Sq Ft: | 2061.0 |
| Phone: | 352-396-0112 |
| Contact Us: | Email |
Website: | |
| License #: | CGC1516468 |